Photo of stained glass window
Photo of married couple in front of church
Photo of church sanctuary

Event rentals

A historic church and hall for wedding, concert, rehearsal, theater, film, photo, and meeting events in NYC's downtown Financial District.

Sanctuary

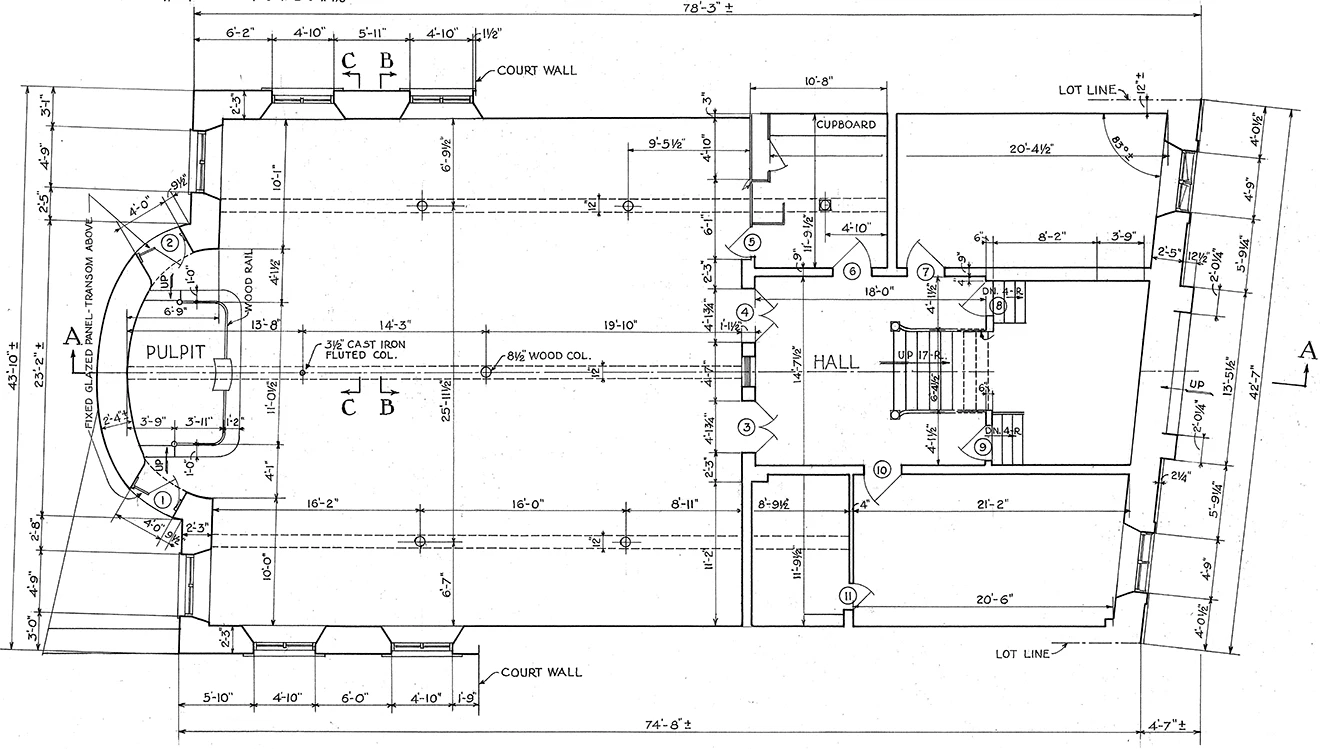
Floor plan of sanctuary

Overview

The sanctuary is a 270-seat venue with a sound system, lighting, and basic livestream recording. Steps away from Fulton Center and the World Trade Center, it is convenient to the downtown Financial District, Seaport, Tribeca, and Battery Park City.

Download plan See photos

Features

Space planning

The seating area accommodates 270 people. It is divided into three sections that extend the length of the room: a wide central section flanked on both sides by an aisle and a narrower section. Each section has 17 rows of wooden pew benches with seat cushions and full backs.

The seating area has no center aisle. For weddings, the bride and groom must enter and exit through one of the two side aisles or through the exterior door to the left of the stage.

The stage is roughly 17'4" x 8'6" and rises 2'6" above floor level. A piano occupies 7'8" x 5'2" of this space, but may be temporarily moved by an approved piano mover at your expense. A 4'9" wide area (raised 10") fronts the stage and is bordered by an altar rail.

There is no back-of-house/backstage area. For discreet exits or changes, an 8'4" x 8'4" space before the pews at stage left may be used for a free-standing curtain/screen if it is unneeded for access. Alternatively, performers may exit to the courtyard using the exterior door to the left of the stage/dais.

The balcony may be used by performers (with a signed release) and for production needs like decor, sound, and lighting tech, but cannot be used for guest seating due to modern railing height requirements.

The restrooms are located on the lower level down two half-flights of stairs. There is one men's and one women's restroom, each shared by both performers and guests. The women's restroom has 3 sinks, one standard stall, and one oversized stall. The men's restroom has 2 sinks, 1 standard stall, and 2 urinals. A separate room can be available as a dressing room for performers.


Accessibility

The sanctuary and restrooms are only accessible via a flight of stairs and, unfortunately, lack ADA access due to limitations in our historic structure and facade. For details, see the Exterior and Vestibule section.


Staging and decor

Freestanding structures such as screens may be used on approval.

8'-high slim wooden pillars provided by the church can optionally be attached to the pews in the center seating area at roughly 12' intervals to support garlands and other lightweight decor.

Lightweight items can be attached to our railing, pews, and other wooden fixtures using zip ties or cord. No nails or adhesive are allowed.

While decor and staging can often remain in place during days with no scheduled events, all items must be removed from the seating and stage before our weekly Sunday service. (A small temporary storage area downstairs may be available for some multi-day events.)


Technical specifications

House lighting is provided by an elegant 5'6"-diameter, 12-arm brass candelabra chandelier; 10 brass candelabra sconces; and recessed overhead lighting. All lights are electric and lack a dimmer switch.

Stage lighting is provided by a three-point placement of recessed overhead lighting to the rear of the stage and two racks of semi-stationary floodlights placed on the balconies on both sides of the stage.

In-house sound is provided by a set of stage microphones and wall-mounted speakers.

Video recording and livestreaming can be coordinated with our in-house AV technician for some events for an additional charge. Our equipment includes:

  • Two 1080p (Full HD) PTZ Optics video cameras with a switch to change between the cameras in real-time. One camera mounted at the back center of the church captures wide and close shots of the seating area and stage. A second camera mounted on the balcony captures profile views of stage right.
  • A set of wireless handheld Shure microphones, a Shure podium microphone, a pair of AKG piano microphones, and a pair of AKG room microphones.

Our organ is an Ernest Skinner electro-pneumatic pipe organ with 2 manuals, 30 registers, 18 stops, and 20 ranks.

Our piano is a Steinway Grand piano.


Services

If you would like for Rev. Stefanie Bennett to perform a marriage ceremony, please email johnstreetchurch@gmail.com.

We can refer pipe organ and piano accompanists as well as other classical, religious, and folk musicans and vocalists.

Photos

Photo of church - back right
Photo of church - balcony
Photo of church - back left
Photo of church - front right
Photo of church - front center
Photo of church - front left

Exterior and Vestibule

Plan of vestibule

Overview

Listed on the National Register of Historic Places, our building's Georgian-style facade was widely depicted in 19th-century art and can lend a historic, formal tone to any event. Our entry vestibule has a distinctive staircase and the best lighting from our stained glass windows for photograph and film shoots.

Download plan See photos

Features

Space planning

The building facade is dark brownstone with three Palladian stained glass windows and a red door. It is 42'7" wide and has no setback from the sidewalk, so a city permit is needed for any temporary structure that you wish to place before the church on the sidewalk.

The vestibule is a roughly 12'8" x 6'5" space flanked by two curving, red-carpeted staircases and lighted by our stained glass windows.

The courtyards located on both sides of the church are privately-owned public spaces operated by the Federal Reserve to which we have permanent right of use. Guest and bridal party entrances, exits, and photos can happen there whenever the park is open. However, to close the space to the public for your exclusive private use or after the space's opening hours, we must obtain the permission of the Federal Reserve. (Note: In late 2025/early 2026, use of the courtyards will very limited due to facade work on adjoining buildings.)


Accessibility

Our 19th-century building lacks ADA access due to limitations in its historic structure and facade. There are three shallow stairs in the threshold leading to our vestibule, 8 steep, curving stairs ascending from the vestibule to the sanctuary, 9 steep stairs descending from the vestibule to the museum hall, and 4 steep stairs descending from the museum hall to each restrooms.

Photos

Photo of stained glass window
Photo of married couple in front of church
Photo of exterior
Photo of exterior
Photo of exterior
Photo of exterior

Meeting / Dining Hall

Plan of museum

Overview

The Meeting / Dining Hall is a semi-basement venue with circular tables to seat 60 guests and a kitchen for receptions and catered events. Steps away from Fulton Center and the World Trade Center, it is close to many dining and catering options in the Financial District, Seaport, and Tribeca.

Download plan See photos

Features

Space planning

The Meeting / Dining Hall has a 25'11" x 41' area which can be left empty or staged with our 6' diameter circular tables and lightweight backed chairs. It is flanked on two sides by thin, clear suspended vitrines of historical artifacts which are surrounded by an additional narrow access walkway.

The kitchen is a 12' x 10'8" space on the same floor with a standard refridgerator/freezer, large industrial stove, one double sink, and one bar sink.

The restrooms are located on the same floor and include one men's and one women's restroom. The women's restroom has 3 sinks, one standard stall, and one oversized stall. The men's restroom has 2 sinks, 1 standard stall, and 2 urinals.


Accessibility

The museum hall, kitchen, and restrooms are only accessible via a flight of stairs and lack ADA access due to limitations in our historic structure and facade. For details, see the Exterior and Vestibule section.

Photos

Photo of museum
Photo of museum
Photo of museum

What's nearby

Restaurants / Catering
  • Carne Mare
  • Da Claudio
  • Felice 15 Gold
  • Manhatta
  • The Paris Cafe
  • The Tin Building
  • Yao
Attractions
  • 9/11 Memorial and Museum
  • Federal Hall
  • Fraunces Tavern
  • Governor's Island
  • South Street Seaport Museum
  • Statue of Liberty / Ellis Island
  • Wall Street / NY Stock Exchange
Lodging
  • AKA Wall Street
  • Aloft - Manhattan Downtown
  • Artezen Hotel
  • Gild Hall
  • Holiday Inn - Wall Street
  • Radisson Hotel - Wall Street
  • Residence Inn by Marriott - New York

Contact us


We're glad that you're interested in using our venues to host your event.

We welcome a wide range of uses, including weddings, concerts, conferences, dinners, theater productions, film shoots, photo shoots, choral rehearsals, community meetings, and condo meetings.

Please contact us for prices, availability, or to request a tour.

 johnstreetchurch@gmail.com   (212) 269-0014